Plochingen-Zentrum: Hundertwasserhaus
2,5-Zimmerwohnung im Hundertwasserhaus. Balkon, TG-Stpl. inkl.
| Objektdaten | |
|---|---|
| Wohnfläche | ca. 62 m² |
| Baujahr | 1994 |
| Bezug | 01.03.2026 |
| Mietpreis | 945,00 € mtl. |
| Nebenkosten | € 230,00 ohne Wohnungsstrom und Internet |
| Kaution | € 1.750,00 |
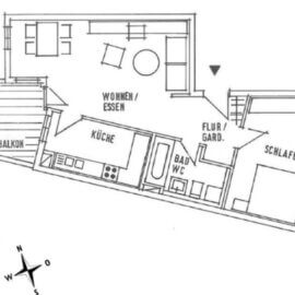
| Details | Diese wunderschöne Wohnung im 1. OG des Hundertwasserhauses besticht durch ihren großen überdachten Balkon mit Blick in den von Friedensreich Hundertwasser gestalteten Innenhof: viel Grün, phantasievolle Bepflanzungen, ideenreiche Fassaden, bunte Fenster. – Eingangsbereich mit Garderobennische Lage: |
| Besichtigung | Eine Besichtigung ist nach Absprache mit unserem Büro gerne möglich. Bitte rufen Sie uns an oder schreiben Sie uns an immobilien@markoc.de. |
| Geschäfts- bedingungen |
Der mtl. Mietpreis versteht sich als Staffelmiete und wird jährlich um € 15,00 erhöht. Alle Angaben beruhen auf Informationen des Vermieters, wir übernehmen für die Richtigkeit keine Haftung. |
| Endenergie- verbrauch |
115.6 KWh/(m²a) |
| Energieträger | Nah- und Fernwärme |
| Baujahr der Anlage | 1994 |
- A+
- A
- B
- C
- D
- E
- F
- G
- H
- 0
- 25
- 50
- 75
- 100
- 125
- 150
- 175
- 200
- 225
- >250
















