Plochingen - Lettenäcker
3,5-Zimmer-ETW. Balkon. Einzelgarage. Frei.
| Objektdaten | |
|---|---|
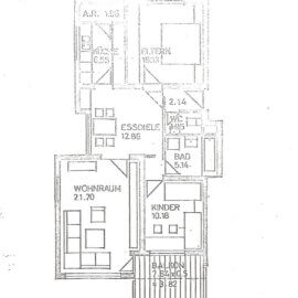
| Wohnfläche | ca. 81 m² |
| Baujahr | 1977 |
| Bezug | Sofort möglich |
| Kaufpreis | 285.000,00 € |
| Provision | 3,57 % (inkl. 19% gesetzl. MwSt.) als Nachweisprovision aus dem notariell beurkundeten Kaufpreis. |
| Details | Helle großzügige Wohnung, barrierearm und deshalb gut geeignet auch für ältere Menschen. – Wohnzimmer mit Balkonzugang, Schlafzimmer, Kinderzimmer, Essdiele Lage: |
| Besichtigung | Eine Besichtigung ist nach Absprache mit unserem Büro gerne möglich. Bitte rufen Sie uns an oder schreiben Sie uns an immobilien@markoc.de. |
| Geschäfts- bedingungen |
Alle Angaben beruhen auf Informationen des Verkäufers, wir übernehmen für die Richtigkeit keine Haftung. |
| Endenergie- verbrauch |
141.9 KWh/(m²a) |
| Energieträger | Gas |
| Baujahr der Anlage | 2007 |
- A+
- A
- B
- C
- D
- E
- F
- G
- H
- 0
- 25
- 50
- 75
- 100
- 125
- 150
- 175
- 200
- 225
- >250


















